91视频

91视频> 档案信息> 新闻详情

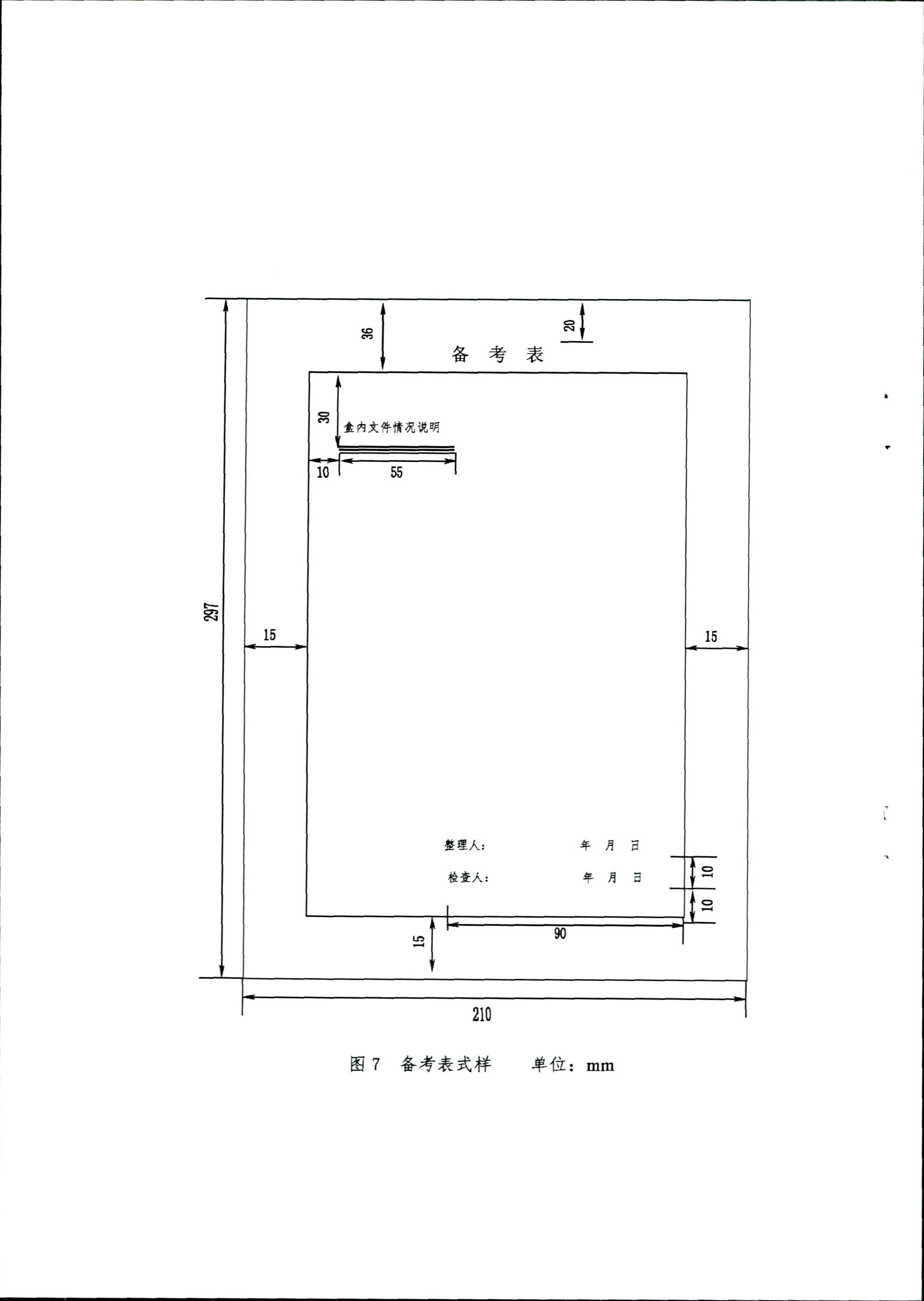
苏水源档(2019)1号91视频 关于印发《归档文件整理规则实施细则》的通知

发布时间:2020-11-04 09:44:30 分享
备案序号:苏ICP备16032068号
Copyright © 201891视频-91视频播放